top of page

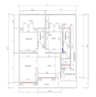
Projeto Itanhaém; Uma das opções de lazer mais procuradas nos dias de hoje para feriados, férias ou como opção de morar nas regiões litorâneas do Brasil. Este projeto residencial num terreno de 250m2. Quarto, suíte, banheiro , sala e cozinha, está localizado na cidade de Itanhém.
Proprietário : Cezar Nunes.

Wellington: Arquiteto






bottom of page